Späť na ponuky

2-izbový byt s parkovacím miestom na predaj- NOVOSTAVBA – Liptovský Hrádok

RK SPIRIT Vám ponúka na PREDAJ dvojizbový byt v novostavbe „Pod lesom“, v obci Liptovský Hrádok – časť Celiny, na ulici Dr. A. Škarvana.

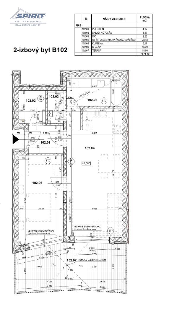
Byt sa nachádza na 1. poschodí v dome B s celkovou rozlohou 88,11 m² (z toho priestranná terasa o výmere 18,9 m² a pivničná kopka – sklad o výmere 9,37 m²). Dispozične pozostáva z predsiene, obývacej izby s kuchyňou a jedálenskou časťou, samostatnej spálne, kúpeľne, samostatného WC, technickej miestnosti a priestrannej terasy. K bytu prislúcha aj pivničná kobka nachádzajúca sa na prízemí domu. V cene bytu je zahrnuté aj 1 parkovacie miesto pred domom.

Byt sa predáva ako holobyt s dokončenými sadrovými omietkami, potermi a rozvodmi inštalácií. Byty majú plastové okná s trojsklami. Kúrenie je riešené samostatným plynovým kotlom využívaným na ohrev teplej vody a teplovodným podlahovým kúrením.

Projekt ,,POD LESOM“ ponúka ideálne spojenie komfortu a praktického života v tichej lokalite s krásnymi výhľadmi na okolitú prírodu. Jeho výsledkom je dokopy 7 skolaudovaných bytov, z toho 4 dvojizbové byty, 1 trojizbový a 2 štvorizbové mezonety. Byty sú rozložené v troch budovách, na dvoch podlažiach a podkroví. Ku každému bytu prislúcha aj kobka (sklad) umiestnená na prízemí domu a 1 alebo 2 parkovacie miesta pred domom.

Viac informácii o projekte Vám radi poskytneme v realitnej kancelárii RK SPIRIT.

Dr. A. Škarvana, Liptovský Hrádok

2 izbový byt

Úžitková plocha: 69m2

166 549,00 €

Záujala vás táto ponuka?

Dohodnite si obhliadku

Vyplňte prosím nasledujúci formulár a my vás budeme obratom kontaktovať.

    Potrebujete poradiť?

    Kontaktujte Nás, my Vám zavoláme.

    Kontakt
    Prehľad cookies

    Táto webová stránka používa cookies, aby sme vám mohli poskytnúť čo najlepšiu používateľskú skúsenosť. Informácie o súboroch cookie sa ukladajú vo vašom prehliadači a vykonávajú funkcie, ako je rozpoznanie vás, keď sa vrátite na našu webovú stránku, a pomáhajú nášmu tímu pochopiť, ktoré časti webovej stránky sú pre vás najzaujímavejšie a najužitočnejšie.

    Nevyhnutné súbory cookies

    Nevyhnutné súbory cookie by mali byť vždy povolené, aby sme mohli uložiť vaše preferencie pre nastavenia súborov cookies.

    Cookies tretích strán

    Táto webová stránka používa Google Analytics na zhromažďovanie anonymných informácií, ako je počet návštevníkov stránky a najobľúbenejšie stránky.

    Ponechanie tohto súboru cookie nám pomáha zlepšovať našu webovú stránku.